- Taryba
- Tarybos nariai
- Posėdžių darbotvarkė
- Teisės aktų projektai
- Posėdžių transliacija
- Komitetai
- Komisijos
- Tarybos
- Dokumentai
- Kaišiadorių rajono savivaldybės 2024 m. metinė ataskaita
- Tarybos posėdžių protokolai
- Antikorupcijos komisijos protokolai
- Kontrolės komiteto veiklos ataskaitos
- Etikos komisijos sprendimai
- Savivaldybės tarybos veiklos reglamentas
- 2019-2023 metų kadencijos savivaldybės tarybos narių išlaidos
- Tarybos narių nepriimti nusišalinimai
- Pažymos-suvestinės apie Tarybos narių dalyvavimą / nedalyvavimą vykusiuose tarybos, komitetų, nuolatinių komisijų ir kolegijos posėdžiuose ir priskaičiuotą darb
- Nepriekaištingos reputacijos deklaracijos
- Struktūra ir kontaktinė informacija
- Gyventojams
- Turistams
- Verslininkams
- Apie savivaldybę
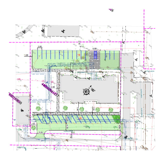
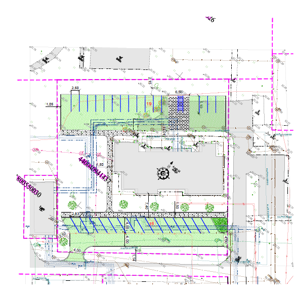
Visuomenės informavimas apie numatomą statinių (jų dalių) projektavimą
Numatomo rengti statinio projekto pavadinimas
Kitos paskirties inžinerinio statinio – kiemo aikštelės, adresu: V. Ruokio g. 5, Kaišiadorių m., statybos projektas
Statytojas (-ai)
Kaišiadorių rajono savivaldybė, dokumentai@kaisiadorys.lt, +370 346 20 450
Statinio (-ių) duomenys
Statinio tipas. Aikštelė
Paskirtis. Kitos paskirties
Adresas: Kaišiadorys, V. Ruokio g. 5
Žemės sklypo kadastro Nr., sklypo geografinės koordinatės (X, Y) 4918/0055:17 X: 6080367 Y: 528477
Žemės sklypo esama pagrindinė naudojimo paskirtis ir būdas. Kitos paskirties žemė, daugiabučių gyvenamųjų pastatų ir bendrabučių teritorijos
Statybos rūšis. Naujo statinio statyba
Projektinius pasiūlymus parengęs asmuo ar jo įgaliotas atstovas (-ai)
Projektuotojo įgaliotas asmuo – Tadas Jančiauskas
El. p. tadas.j@jandas.lt, mob. +370 686 28 701
Projektuotojas UAB „Jandas"
El. p. info@jandas.lt, mob. +370 678 78 291
Kur galima susipažinti su projektiniais pasiūlymais
Adresas: Kaišiadorys, Katedros g. 4
Laikas darbo dienomis, I–IV 8.00–17.00 val., V 8.00–15.45val.
Tel. +370 686 28 701
Kaip galima teikti pasiūlymus projektuotojui dėl projektinių pasiūlymų
- Raštu Kaišiadorių rajono savivaldybės administracijai, Katedros g. 4, Kaišiadorys
- El. p. tadas.j@jandas.lt
Pasiūlymus galima teikti iki 2025-06-25
Kur ir kada vyks viešasis susirinkimas
Nuoroda į viešo susirinkimo transliaciją (viešas susirinkimas vyks nuotoliniu būdu) https://us02web.zoom.us/j/2037422731
Data ir laikas 2025-06-25 15:00
Kita informacija (Passcode (slaptažodis): 123)